proiect finalizat

apartament 2 camere
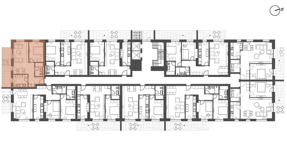
tip X1

Hol 8,62 mp
Bucătărie 7,48 mp
Baie 4,30 mp
Camera de zi 19,70 mp
Dormitor 11,67 mp
Suprafață utilă 51,75 mp
Balcon 14,45 mp
Suprafață utilă totală 66,20 mp
Suprafață construită 80,82 mp
Etaj Disponibilitate Preț
etaj 1 Vândut
etaj 2 Vândut
etaj 3 Vândut
etaj 4 Vândut
etaj 5 Vândut
etaj 6 Vândut
etaj 7 Vândut
etaj 8 Vândut
etaj 9 Vândut
etaj 10 Vândut
etaj 11 Vândut

solicită o
ofertă

Birou de vânzări

Str. Glădiței, nr. 15 - 17,
Sector 4, București
Luni - Vineri: 9:00 - 18:00

waze google maps











    phone logo 072.707.4925