proiect finalizat

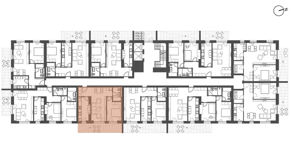
apartament 2 camere
tip X8

Hol 6,71 mp
Bucătărie 10,58 mp
Baie 4,30 mp
Camera de zi 20,40 mp
Dormitor 12,20 mp
Suprafață utilă 54,14 mp
Balcon 15,71 mp
Suprafață utilă totală 69,90 mp
Suprafață construită 84,07 mp
Etaj Disponibilitate Preț
etaj 1 Vândut
etaj 2 Vândut
etaj 3 Vândut
etaj 4 Vândut
etaj 5 Vândut
etaj 6 Vândut
etaj 7 Vândut
etaj 8 Vândut
etaj 9 Vândut
etaj 10 Vândut
etaj 11 Vândut

solicită o
ofertă

Birou de vânzări

Str. Glădiței, nr. 15 - 17,
Sector 4, București
Luni - Vineri: 9:00 - 18:00

waze google maps











    phone logo 072.707.4925