proiect finalizat

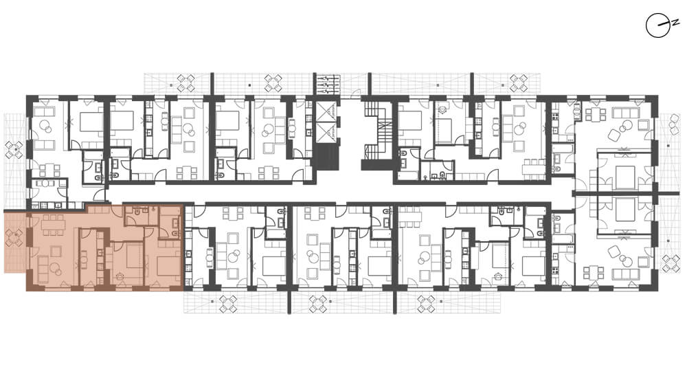
apartament 3 camere
tip X9

Hol 9,78 mp
Bucătărie 9,40 mp
Baie 4,56 mp
Camera de zi 24,27 mp
Dormitor 13,04 mp
Dormitor 11,02 mp
Baie 4,13 mp
Suprafață utilă 76,21 mp
Balcon 9,05 mp
Suprafață utilă totală 85,26 mp
Suprafață construită 105,62 mp
Etaj Disponibilitate Preț
etaj 1 Vândut
etaj 2 Vândut
etaj 3 Vândut
etaj 4 Vândut
etaj 5 Vândut
etaj 6 Vândut
etaj 7 Vândut
etaj 8 Vândut
etaj 9 Vândut
etaj 10 Vândut
etaj 11 Vândut

solicită o
ofertă

Birou de vânzări

Str. Glădiței, nr. 15 - 17,
Sector 4, București
Luni - Vineri: 9:00 - 18:00

waze google maps











    phone logo 072.707.4925